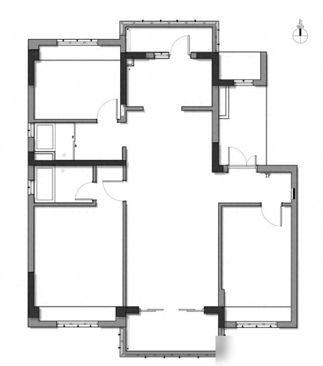
谁懂啊!现在年轻人的客厅居然不用沙发改用书桌了?南京一对小夫妻把128㎡精装房的客厅“老三样”扔了,摆张能办公、社交还能撸猫的大书桌,还改了次卧门缓解动线,扩厨房做U型岛台,整个家温暖又实用。 这才是年轻人该有的家啊!不被“必须有沙发”的传统绑住,怎么舒服怎么来,日子过得自在比什么都强。 以前总觉得客厅得按“标准”装,现在才懂,能装下日常小美好、留得住烟火气的,才是最棒的家。 你们家有没有打破传统的设计?咱们中国人的家,就该装出自己的烟火气!评论区聊聊~
















谁懂啊!现在年轻人的客厅居然不用沙发改用书桌了?南京一对小夫妻把128㎡精装房的客厅“老三样”扔了,摆张能办公、社交还能撸猫的大书桌,还改了次卧门缓解动线,扩厨房做U型岛台,整个家温暖又实用。 这才是年轻人该有的家啊!不被“必须有沙发”的传统绑住,怎么舒服怎么来,日子过得自在比什么都强。 以前总觉得客厅得按“标准”装,现在才懂,能装下日常小美好、留得住烟火气的,才是最棒的家。 你们家有没有打破传统的设计?咱们中国人的家,就该装出自己的烟火气!评论区聊聊~
















作者最新文章
热门分类
时尚TOP
时尚最新文章