挑战分析100个城市更新|88杨浦滨江皂梦空间 此次城市更新的对象,是上海杨浦滨

城市更新观察家 2025-10-18 12:22:05

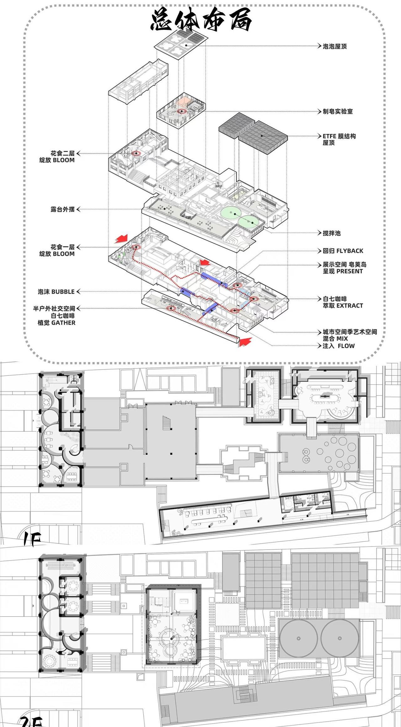
挑战分析100个城市更新|88杨浦滨江皂梦空间 此次城市更新的对象,是上海杨浦滨江原制皂厂改造。设计通过保留核心工业构筑物、以制皂流程串联空间、用主题材料呼应质感、植入制皂实验室 + 咖啡等功能等策略,实现了工业遗存活化与滨江公共空间升级,为市民提供兼具工业记忆体验、休闲互动的滨水服务场景。 设计亮点: [一]空间的 “流程化串联”: 以制皂全流程 “注入 - 混合 - 萃取 - 呈现 - 回归” 命名各功能区,用 5 个直径 2.4 米的钢制圆筒串联空间,管内嵌入互动光影装置,游客穿行时如 “跟随皂液流动”,动线本身成为工业生产逻辑的体验载体,让路径与主题深度绑定。 [二]材料的 “主题质感呼应”: 选料紧扣 “制皂” 特质,玻璃砖模拟皂的透明质感,耐候钢延续厂区工业粗粝感,ETFE 膜复刻皂泡的轻盈形态;白七咖啡区用 RGB 调光,动态模拟皂液从原料到成品的色彩变化。不依赖具象皂形装饰,仅通过材料与光影的质感表达,让主题自然渗透空间。 [三]废弃空间的 “逆向激活”: 把 “低效区” 变核心体验点,原空泳池(闲置深池)不回填,借其下沉尺度打造 “沉浸式制皂实验室”,游客沿钢梯而下体验,形成独特的空间记忆;半户外下沉区(原设备堆放区)保留粗糙肌理,种植皂荚树、置老工具,打造 “皂原料溯源” 场景,将原本的边角劣地转化为主题体验核心。 [四]沉浸式的多感官体验 设计超越了视觉,营造了全方位的沉浸感。你可以吹响带有芬芳气味的“肥皂泡”交互装置,在“皂荚岛”看到不同年代的香皂产品被封装在透明的“肥皂泡”中展示,甚至可以在咖啡馆品尝一块造型逼真的“肥皂蛋糕”。这种将体验从视觉延伸到嗅觉、味觉和触觉的手法,极大地强化了场所的独特记忆点。 城市更新 城市探寻计划 建筑设计 建筑案例 旧建筑改造 建筑设计灵感 公共空间设计 秋色入我家

0 阅读:3
城市更新观察家

城市更新观察家

感谢大家的关注