ICX资讯网
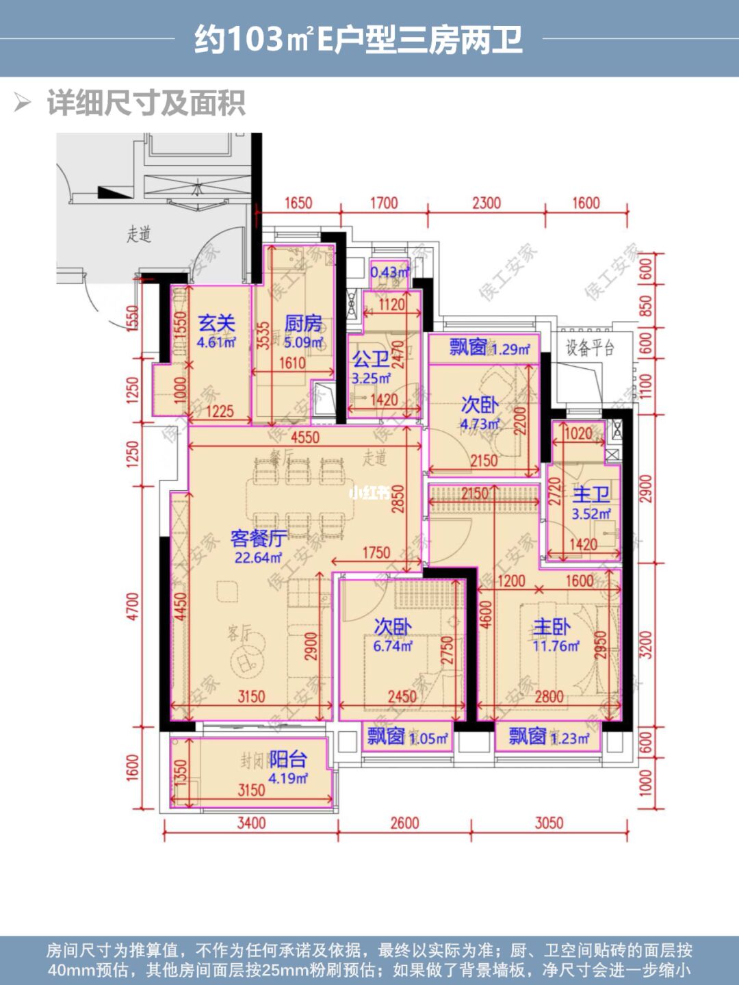
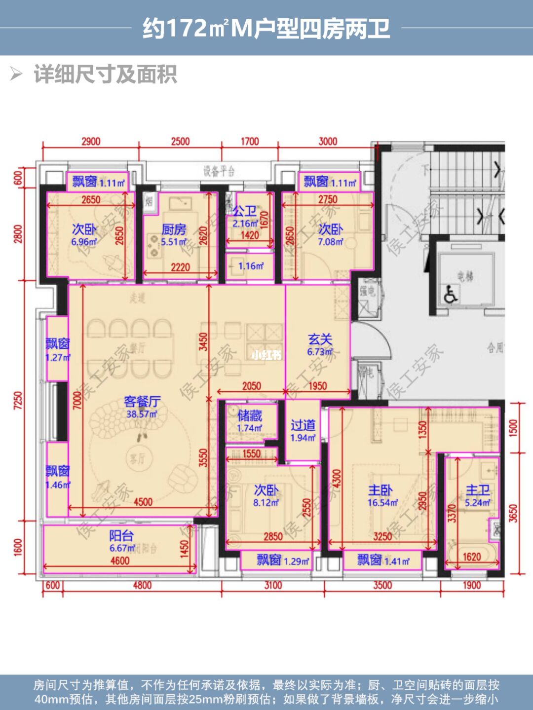
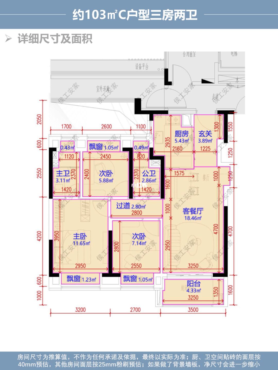
理想之地三期户型分析
纪灵看房产
2023-10-10 20:56:37
0
阅读:37
纪灵看房产
感谢大家的关注
作者最新文章
1
玖珑庭价格分析-有高清源文件
2
玖珑庭户型分析
3
玖珑庭日照分析
4
汇樾庭户型大解读
5
汇樾庭户型分析-下
6
汇樾庭户型分析-上
7
咨询丨资料丨交流丨对接~请进群留言
热门分类
推荐
热榜
军事
NBA
体育
社会
明星八卦
娱乐
财经
科技
汽车
历史
国际
游戏
动漫
公益
搞笑
商业
互联网
数码
国际足球
房产
家居
时尚
科学探索
职场
育儿
股票
教育
影视
情感
热点
中国军情
武器
中国南海
中国足球
亚洲杯
科比
综合体育
CBA
投资
大咖秀
外汇
创业
风口
SUV
豪车
概念车
优惠
新能源
美国
欧洲
朝日韩
俄罗斯
孕期
街拍
婚姻
正能量